Sold

£855,000 Asking Price

Castle Village, Berkhamsted, Hertfordshire

Bedroom icon 3 Bath icon 2

Enquire about this property

01442 967 550

Share:

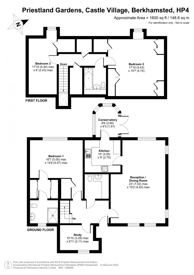
A rarely available larger style three bedroom end chalet, with a spacious through reception room, study, conservatory and private patio, enjoying breath taking views over open countryside and situated within the prestigious Castle Village retirement development (exclusively for the over 55's), centred around a magnificent Grade ll listed Mansion House and 28 acres of fabulous landscaped gardens.

GENERAL INFORMATION:- Purchasers must be 55 years of age or over to become a resident at Castle Village and acceptance is subject to an interview with the village manager. It should be noted that the service charge includes, full onsite estate management, maintenance to the exterior of the buildings, grounds and Mansion House, buildings insurance, heating and lighting within the communal areas and external decoration and window cleaning. In addition, there is one hours domestic cleaning per week, which includes a weekly collection of all bed linen, which is cleaned ironed and returned to the property. For added peace of mind all properties have an emergency call and monitoring system, supported by 24 hour on site health leads and a GP surgery onsite once a week for consultations and prescriptions. Retirement Villages Group are the managing agents and Freeholders for Castle Village.

ASSIGNMENT FEE:- Owners of a Retirement Villages lease are required to pay an assignment fee on the re-sale of the property, which is a percentage of the sale value as defined in the lease of 10% on completion.
LEASEHOLD:- 125 Years from 14th February 2000
MAINTENANCE:- Band D - £14,384 per year (plus £200 per annum for joint occupancy).
GROUND RENT - £250 per annum.
Council Tax Band G
EPC:- Rating C

Floorplan for Castle Village, Berkhamsted, Hertfordshire
EPC graph for Castle Village, Berkhamsted, Hertfordshire

Mortgage Calculator

Calculate

* This calculator is designed to provide an example of the repayments you might expect to make on a mortgage matching the details. The repayment amounts are based entirely on the given interest rate and do not include the charges that would be included with any mortgage product. The repayments shown are not based on an actual mortgage product, therefore the repayments are not guaranteed and will differ between mortgage products and lenders.

Your property may be repossessed if you do not keep up repayments on your mortgage.

Calculate Your Stamp Duty

£

Results

Stamp Duty To Pay:

Effective Rate:

Tax Band % Taxable Sum Tax

How much is your
property worth?

Are you looking to sell or let your property? Take the first step and find out what your property is worth with a free no-obligation valuation.